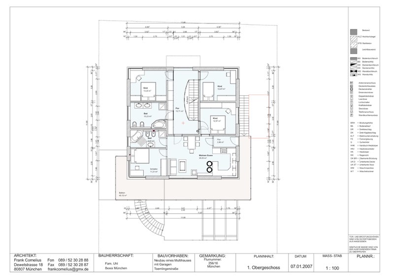
Haus Uhl | München